Coebelweg 21
Leiden (gelegen in Boshuizen)
Vraagprijs
€ 450.000 k.k.
Nieuw
Bekijk 37 foto's
Bekijk 37 foto's
Bekijk 37 foto's
DOEN NVM Makelaars Leiden
| Doezastraat 30, 2311 HB Leiden | |
| 071 - 251 00 00 | |
| leiden@doenmakelaars.com |
Kenmerken
- Prijs
- € 450.000 k.k.
- Bijdrage VVE
- € 208
- Status
- Beschikbaar
- Oplevering
- In overleg
- Adres
- Coebelweg 21
- Postcode
- 2324 KX
- Plaats
- Leiden
Aanvaarding
Bouw
- Soort appartement
- Tussenverdieping, Appartement
- Woonlaag
- 4
- Soort bouw
- Bestaande bouw
- Bouwjaar
- 1991
- Onderhoud binnen
- Goed
- Onderhoud buiten
- Goed
Oppervlakten en inhoud
- Woonoppervlakte
- ca. 90m²
- Oppervlakte woonkamer
- ca. 38m²
- Inhoud
- ca. 271m³
Indeling
- Aantal kamers
- 3
- Aantal slaapkamers
- 2
- Aantal badkamers
- 1
- Aantal verdiepingen
- 1
- Voorzieningen
- Lift, Schuifpui, Glasvezel kabel
Energie
- Energielabel
- C
- Isolatie
- Dubbel glas, Volledig geisoleerd
- Warm water
- C.V.-ketel
- Verwarming
- C.V.-ketel
- Ketel
- Intergas (2019, Combi-ketel, Eigendom)
Buitenruimte
- Ligging
- Aan het water, Aan rustige weg, In woonwijk, Vrij uitzicht
- Balkon
- Ja
- Faciliteiten schuur
- Voorzien van elektra
Garage
Downloads
Buurtinformatie: Leiden,
Boshuizen
Inwoners
1746
Woningen
4350
Inwoners
Koop / Huur
% Huur % Koop
Huishoudens
Boshuizen t.o.v Landelijk.
Eenpersoon
56% - 37.6%
Geen kinderen
19% - 29%
Met kinderen
25% - 33.4%
Leeftijdsopbouw in jaren
Boshuizen t.o.v Landelijk.
Locatie
[{"address": "Coebelweg21","zipCode":
"2324 KX","city": "Leiden","lat":
52.15061,"lng": 4.466223,"heading":
0,"pitch": 0}]
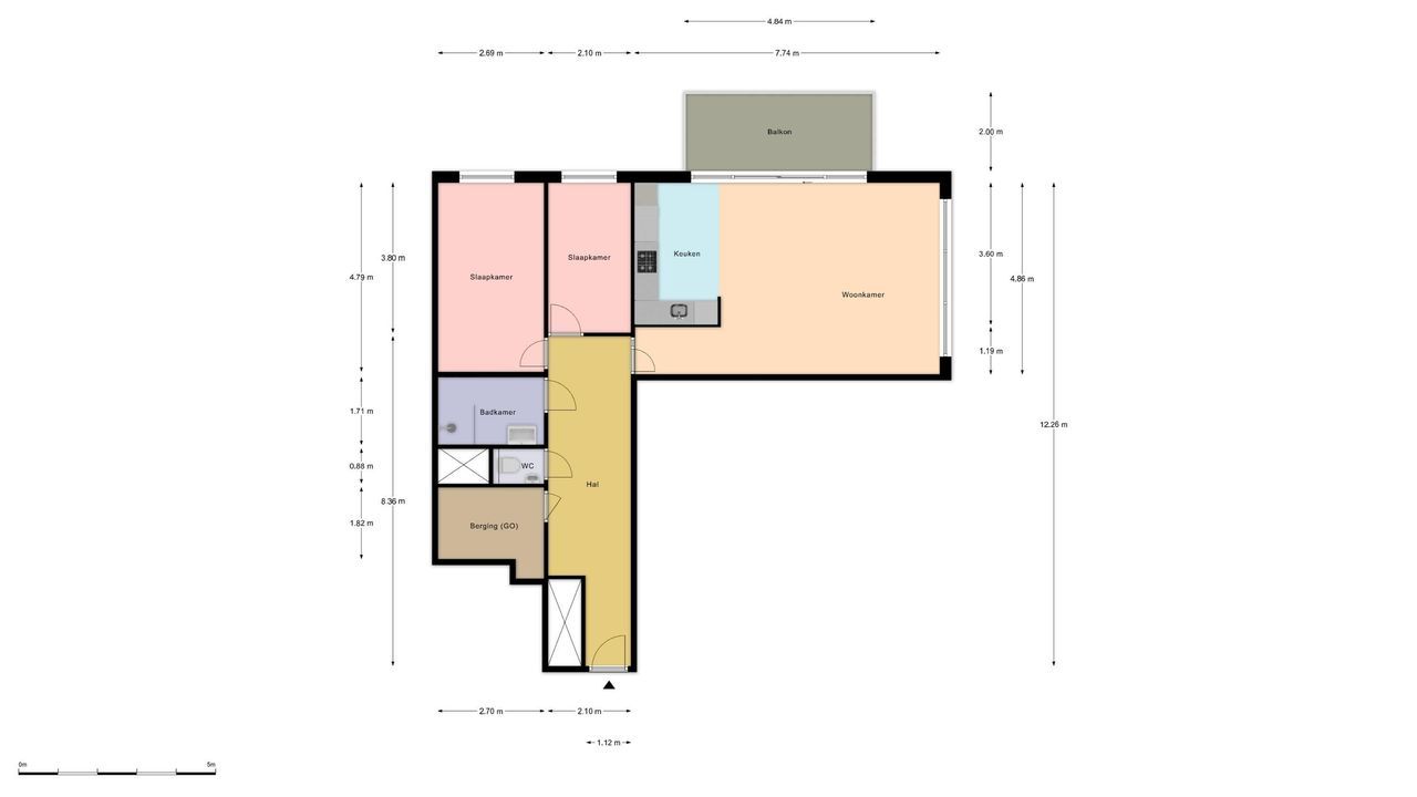
Plattegronden
Benieuwd naar de zon ligging?
Bekijk hieronder het verloop van de zon.
Uw browser ondersteunt geen WebGL
Interesse in deze woning?
Bel of mail ons voor meer info of een afspraak.
Uw makelaar
DOEN NVM Makelaars Leiden
| Doezastraat 30, 2311 HB Leiden | |
| 071 - 251 00 00 | |
| leiden@doenmakelaars.com |